Vente - Vue mer exceptionnelle – Appartement familial avec terrasse, garage et cave – Quartier Salario, Ajaccio
- Proximité mer
- Terrasse

Appartement en vente à Ajaccio
Une opportunité rare dans le secteur ! L’agence Kallisté Conseil a le plaisir de vous présenter en exclusivité un spacieux appartement avec vue panoramique sur la mer, situé dans le quartier résidentiel très recherché du Salario à Ajaccio.
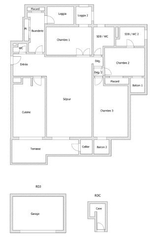
Cet appartement de 121 m² loi Carrez est parfaitement conçu pour une vie de famille confortable ou pour un investissement immobilier de long terme. Le large séjour inondé de lumière donne sur une terrasse de 15,85 m² orientée sud, véritable havre de paix offrant un panorama digne d’une carte postale. La cuisine conviviale et spacieuse dispose également d’un accès direct à l’extérieur.
La partie nuit comprend trois chambres, chacune avec un balcon ou une loggia, offrant un espace privé à chacun. Deux salles de bains avec WC, une buanderie, un dressing, un cellier et de nombreux rangements contribuent au confort de ce bien. Un garage privé, une cave et un environnement calme et sécurisé complètent l’ensemble. Bien que des travaux de rénovation soient à envisager, ce bien vous offre une occasion unique de personnaliser votre intérieur dans un cadre exceptionnel.
Situé à proximité des écoles, lycées, commerces et transports en commun, cet appartement satisfait toutes les attentes pour un projet de vie idéal. N’hésitez pas à nous contacter pour une visite privée.
Surface : 121 m²
Diagnostics énergétiques
Diagnostic de performance énergétique (DPE) : 144 kWh/m²/an
Indice d'émission de gaz à effet de serre (GES) : 23 kgeqCO2/m²/an
Prix
Contactez-nous pour connaître le prix
Honoraires à la charge du vendeur
Charges
Charges prévisionnelles : 2700 € / an
Géorisques
Les informations sur les risques auxquels ce bien est exposé sont disponibles sur le site Géorisques : www.georisques.gouv.fr
Numéro SIREN de l'Agence : 492388863
Agent immobilier inscrit au guichet unique des formalités des entreprises
- Proximité mer
- Terrasse










